loading
(028) 8872 7788
18011571028(文女士)
全国统一服务热线!
首页
我们团队
产品介绍
箱式变电站
组合箱式变电站
高压开关柜
KYN61-40.5
XGN17-40.5
KYN28A-12
XGN2-12
HXGN-12环网柜
HXGN15-12
DFW高压电缆分支箱
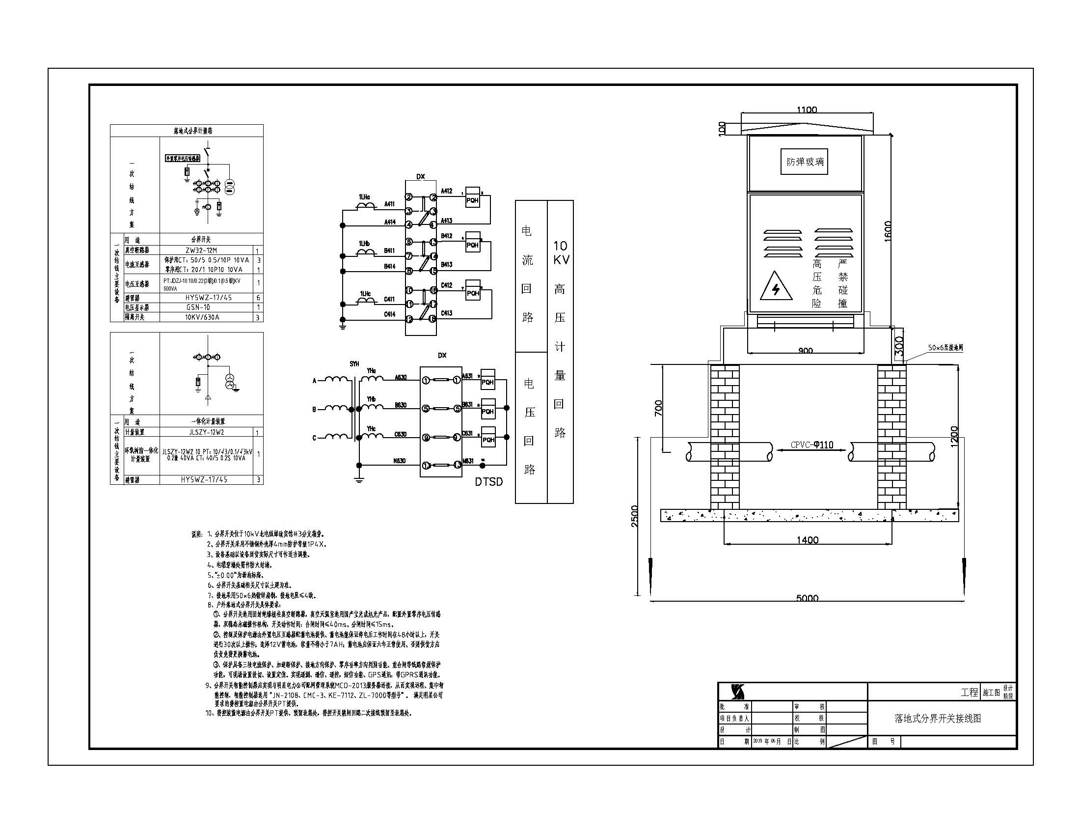
分界真空计量箱
低压开关柜
GCS
GGD
XL-21
XMJ
JP
XM
应用案例
安装项目
售后服务
新闻资讯
关于我们
联系我们
首页
产品介绍
高压开关柜
分界真空计量箱
分界真空计量箱
做顾客永久信赖、安全可靠的优质产品
你需要
电气维护
方面的帮助吗?
联系我们-我们的技术人员已经准备好帮助您解决这个问题.
(028) 8872 7788